PROJEKTY DOMÓW

Projekt budynku mieszkalnego z tarasem widokowym

opis projektu

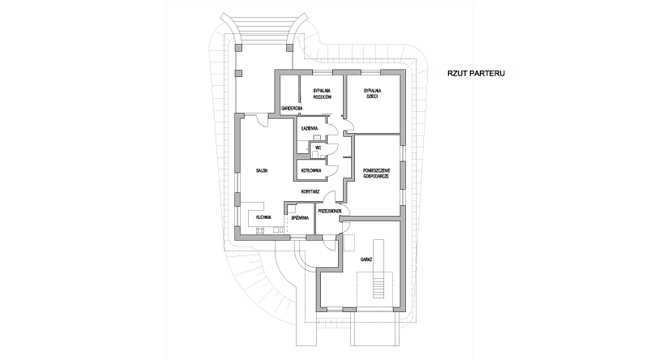
W skład funkcjonalny wchodzą pomieszczenia mieszkalne, pomocnicze, techniczne, gospodarcze oraz garaż z kanałem samochodowym.